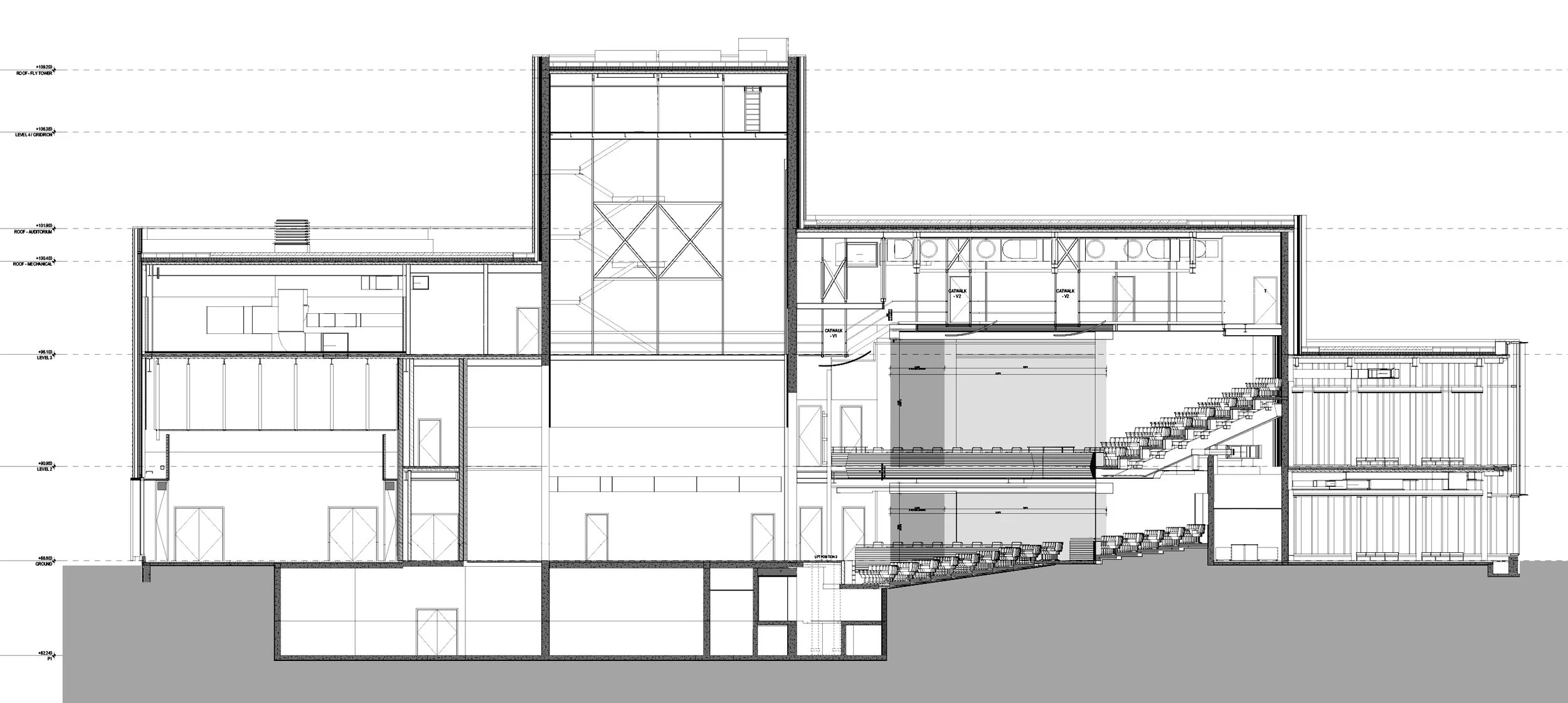
The performing arts centre is a keystone in the proposed revitalization of Pickering’s civic centre. The theatre includes a 600-seat auditorium for orchestral music performances and a rehearsal studio supporting a range of community uses. The entrance and lobby open directly onto the central plaza, extending the cultural activities into a public gathering space.

I oversaw construction document production and coordination, providing guidance to junior staff and maintaining quality control across the drawing sets.

Previous
Previous

130 Elizabeth Street

Next
Next

25 Ontario Street