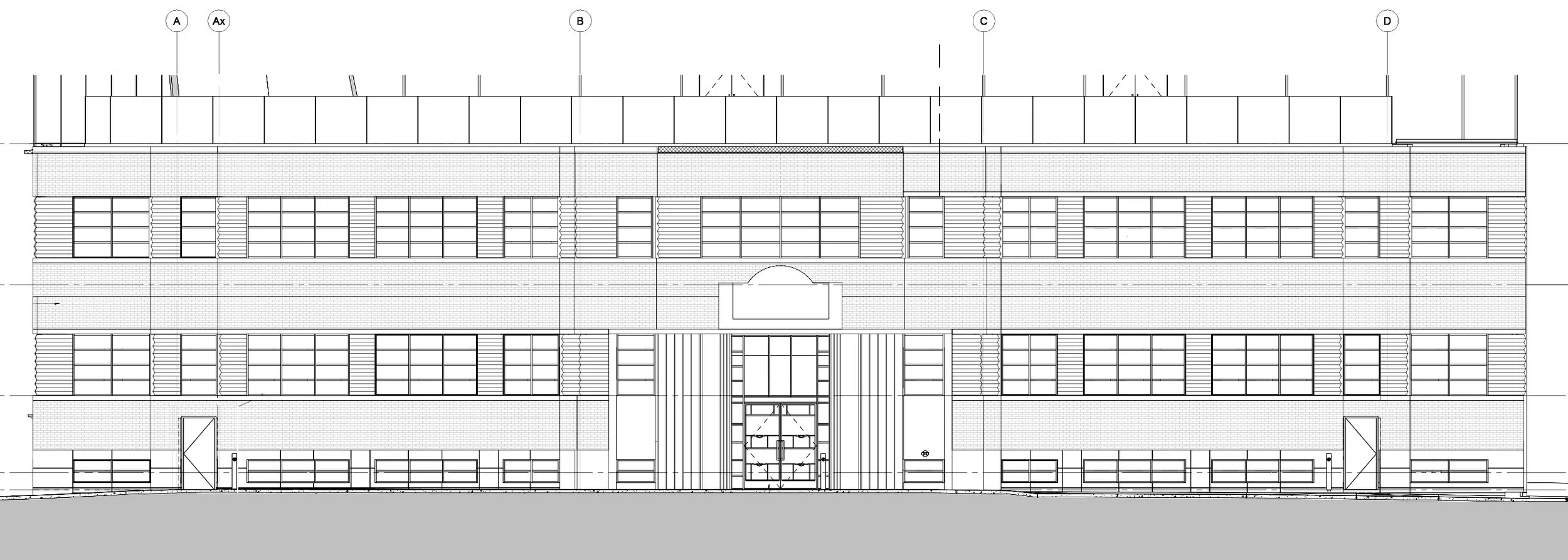
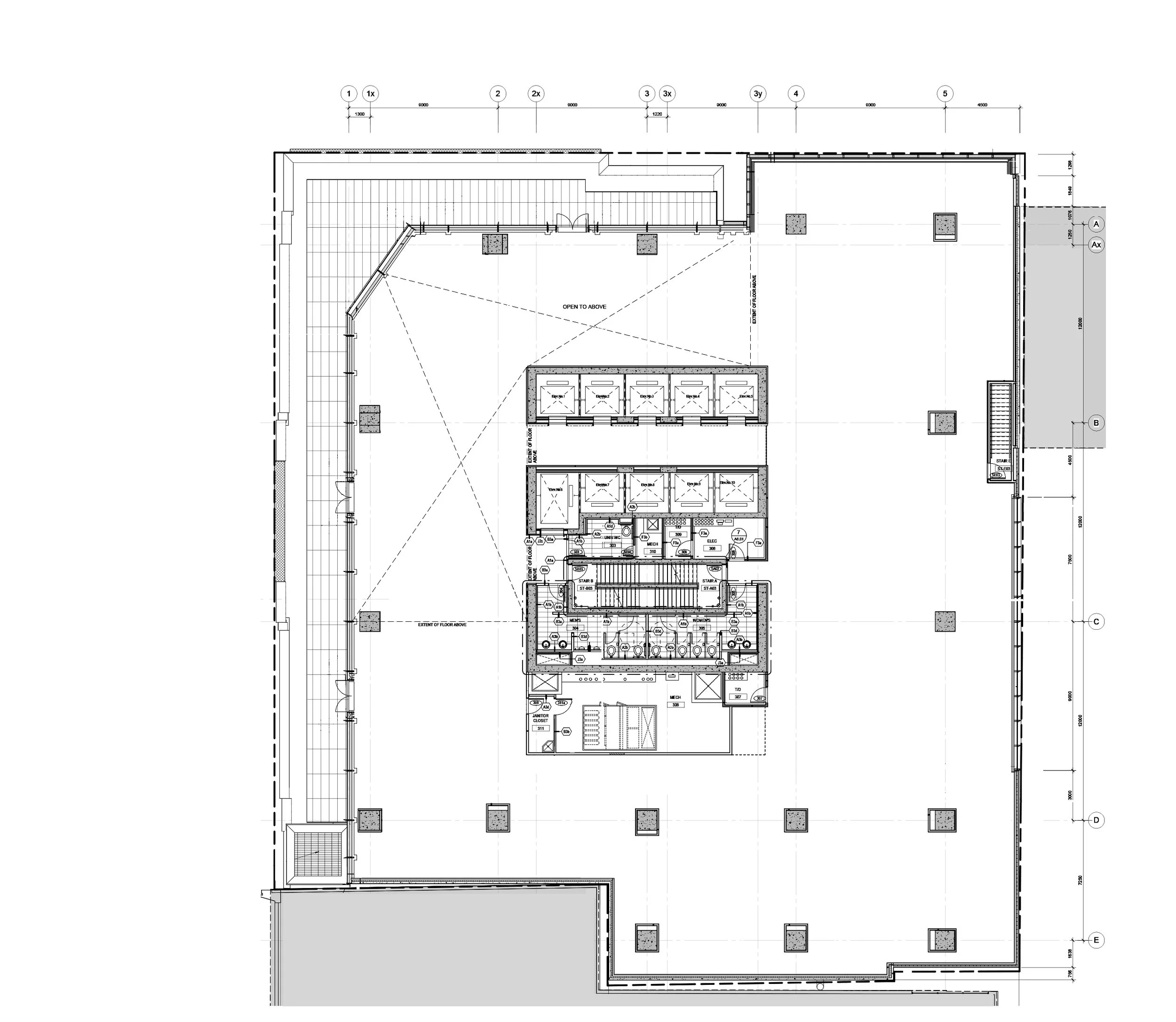
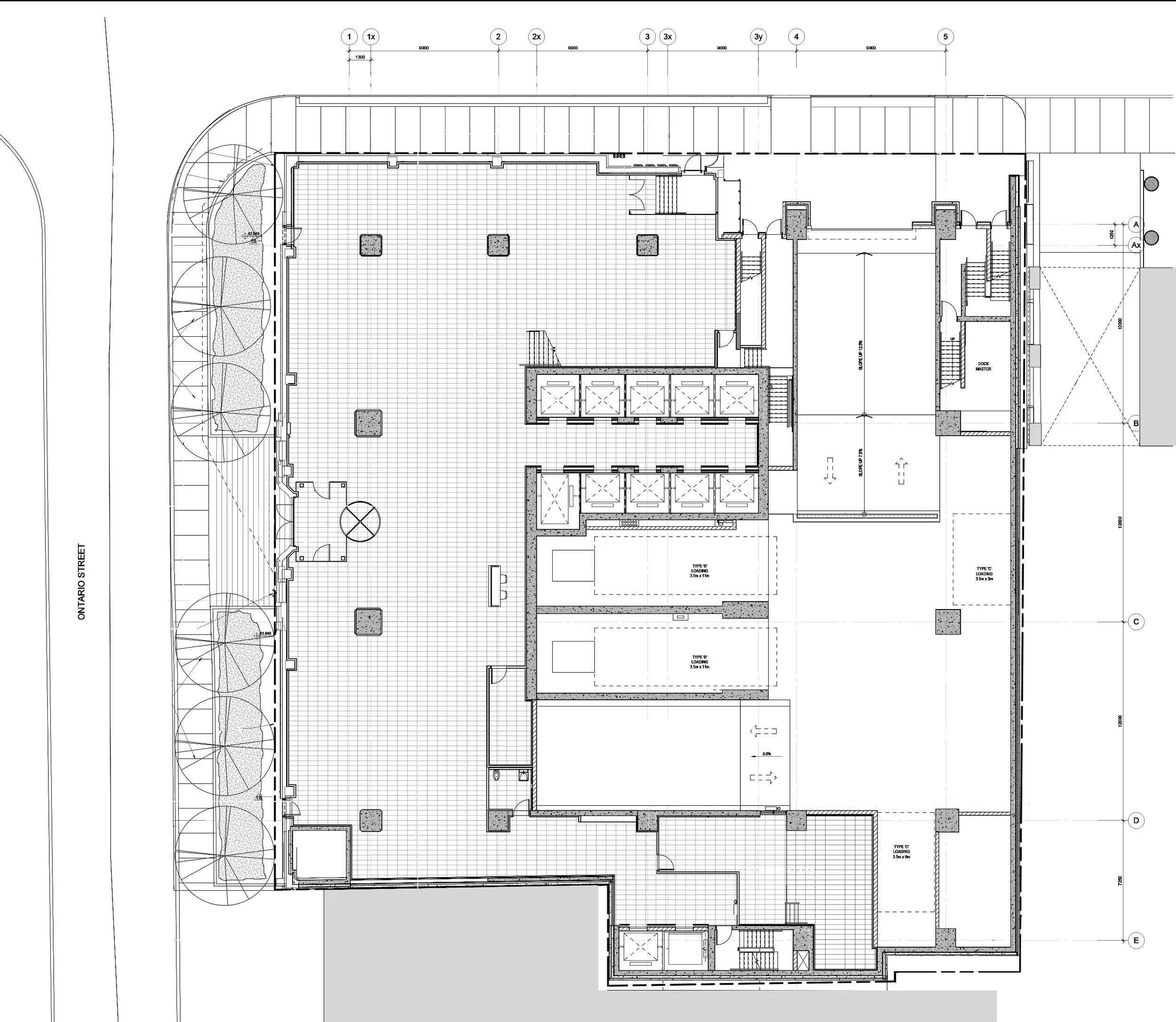
25 Ontario Street is a 23-storey Class A office building with a retained heritage facade at the base.

I worked with the structural consultant on the connection strategy for the heritage portion, and coordinated with SMEP consultants for the five levels of below-grade construction during contract administration.

Previous
Previous

Pickering Performing Arts Centre

Next
Next

King Spadina Block Study