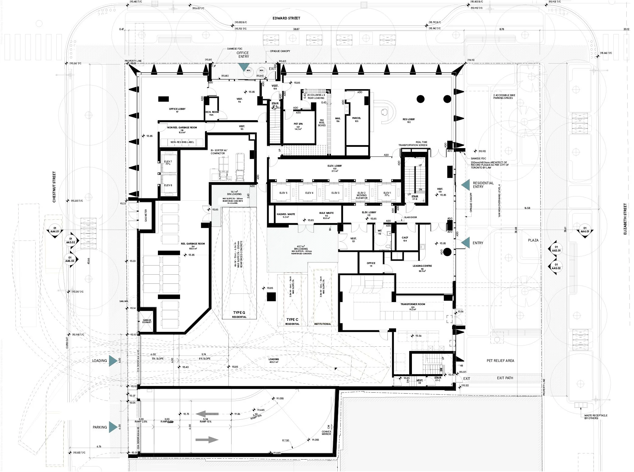
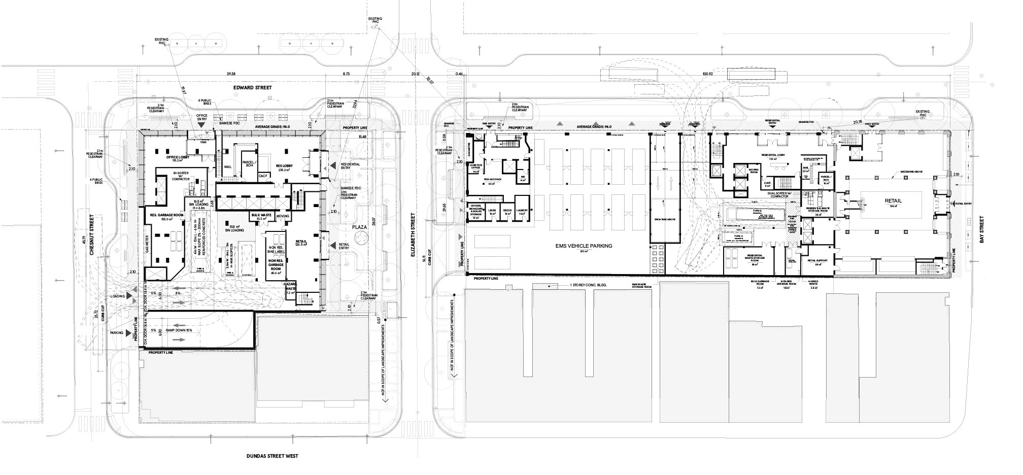
I led the design and production of key building components, including residential and office common areas, and the service spaces, improving circulation and maximizing usable area. I developed the podium curtain wall strategy and rationalized the tower envelope through a modular precast panel system with punched openings.

I coordinated across disciplines to advance the design and improve the clarity and quality of the construction documents.

130 Elizabeth Street and 610 Bay Street occupy the site of a decommissioned bus terminal. Initiated by CreateTO, the project delivers market and affordable housing alongside employment uses.

130 Elizabeth Street sits within a protected City Hall view corridor, which directly shapes its massing and envelope.

Previous
Previous

The Bridge House | Brightwater Block K

Next
Next

Pickering Performing Arts Centre