Brightwater is a 72-acre waterfront redevelopment in Port Credit, Mississauga, transforming a former industrial site into a walkable, mixed-use community organized around a central promenade and lakeshore park.

Block K sits within the Promenade Precinct and combines high-rise and mid-rise residential buildings with townhouses. The buildings are arranged around a shared landscaped courtyard over two levels of underground parking, with 485 units in total.

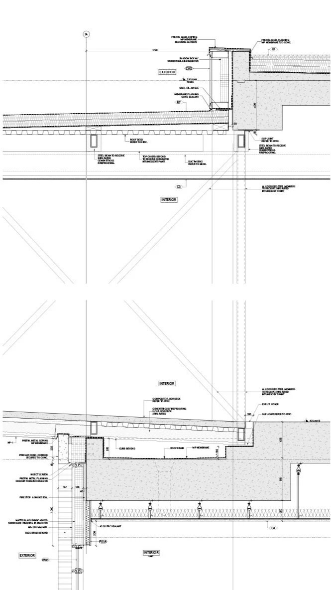
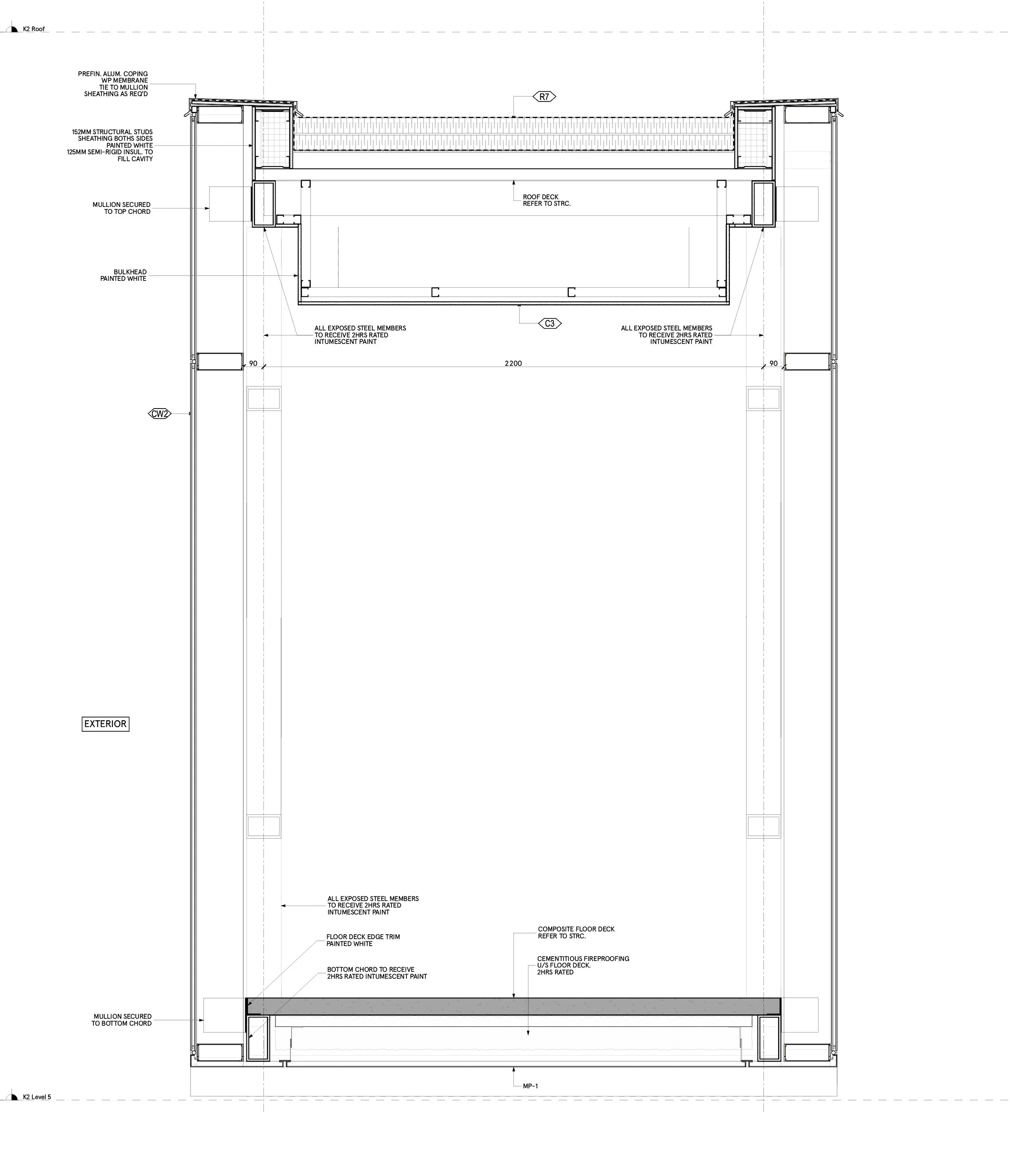
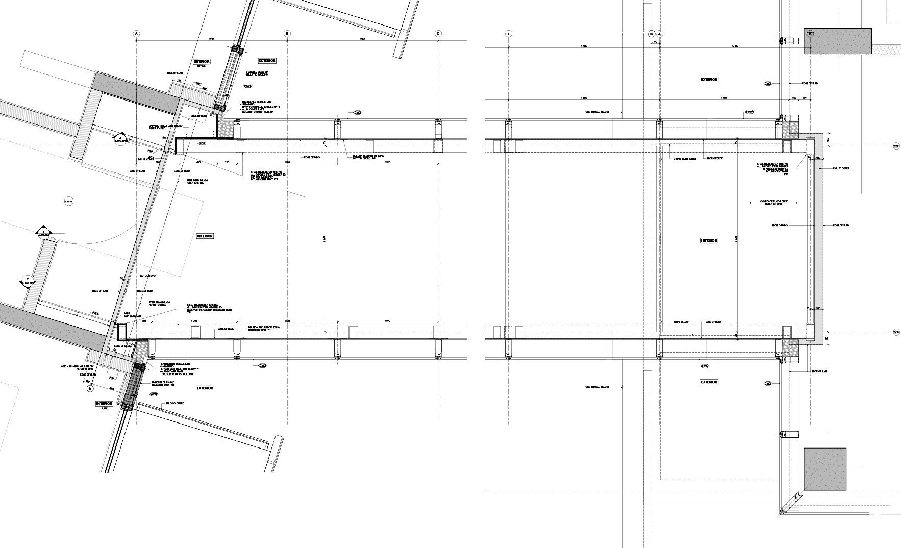
Two enclosed steel bridges connect the towers across the courtyard, giving the project its name - Bridge House, and establishing a clear visual link across the block.

I collaborated with the client through SPA, permit, and tender phases, overseeing consultant teams and resolving design and technical issues. I led the design of the core and shell, and developed intricate details including the bridge connections and parapet-free roof edge.

Next
Next

130 Elizabeth Street